绵阳装修网

0371-58610011

装饰公司

  • 装饰公司
  • 家居建材
  • 设计师
  • 工长工人
  • 效果图
  • 搜文章
  • 搜产品
  • 搜视频

我家不按套路出牌的北欧风格 终于完工了

发布日期:2017-05-20

我家是去年买的二手房,我父母和我们三口一起住,所以就看这三室的房子,好处不用说,等细琢磨才发现原来这个房子有很多问题,当时就想怎么也能住吧,可是越想越麻烦,比如有一间卧室的门冲着大门,卫生间太小了,坐便、水盆、洗衣机和淋浴没发都放下。另外就是关键的客厅,按照原先的摆放很小,可是餐厅很大,我们当时也去看了邻居家,都说只能这么摆。我就是不相信解决不了,然后我就拿着我家的图纸和我对象基本把装修公司都跑遍了,很多公司人家基本不看我的房型图,直接告我价钱啦,品牌啦什么的听的我云里雾里,然后也有不错的公司帮我看房型,也基本都是按照常规的摆放给我介绍,毕竟人家是专业嘛。我也就死了心了,心想反正能住人就不错了,也不想有什么要求了。有一次无意间我看到同事家的装修照片觉得眼前一亮,便要了这家公司的电话,我当时就是抱着试试的心态,因为之前大部分设计师已经给我说了很多想法,我觉得我这房子也就这意思了,好歹装一下,能住就完了。谁知设计师老师实在是太神了,不愧为大师,直接抄起笔来给我当场画图,一会画完,还涂上颜色,我当时傻了,心想就是这家了。

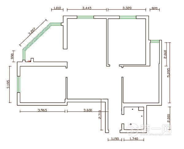
先上个原始图吧,就这个奇怪的房子。

我家不按套路出牌的北欧风格终于完工了

这个是原始图,户型还是可以的,就是规划有点不合理。

我家不按套路出牌的北欧风格终于完工了

这个是布局图。

我家不按套路出牌的北欧风格终于完工了

把这只红色的大鸟贴上去,正好和旁边的绿叶相配。

我家不按套路出牌的北欧风格终于完工了

看,贴好之后就是这样。

我家不按套路出牌的北欧风格终于完工了

因为客厅本身就比较小,设计师运用暖色调把我家的小客厅布置的如此温馨。

我家不按套路出牌的北欧风格终于完工了

在客厅和餐厅之间加了一个电视墙,既间接地扩大了客厅的大小,还将客厅和餐厅隔开了。

我家不按套路出牌的北欧风格终于完工了

电视墙后面的餐厅,黑色时尚,蓝色清新,原木色接地气,不得不说,设计师的想法真不错。

我家不按套路出牌的北欧风格终于完工了

这里是卧室,是不是有种床上开满了花,墙上长满了绿叶的感觉。

我家不按套路出牌的北欧风格终于完工了

这里是一间小小的书房,粉色的墙壁真是要融化了老夫的少女心,还有一些可爱的创意家居,很吸引人。

我家不按套路出牌的北欧风格终于完工了

一个上下床,很节省空间哦。

上述内容为转载或编者观点,不代表装一网意见,不承担任何法律责任。如侵权请联系删除。
如何挑选装修公司,大数据来帮你!

免费设计在线报价

结合当地市场,大数据实时分析计算

手机版

小程序

公众号